House Update! Part 2! As most of you know, we’re building a house in PA. The main reason I am writing this down and publishing a blog post is so I have something to refer to and look back on. Some of you are also building and have asked some questions. So, for those interested, here’s the latest update!
The framework for the house should be up in the next 4 to 8 weeks! I can’t wait! Move in date is the November/December timeframe. If we can spend Christmas in our new house, I will be delighted.
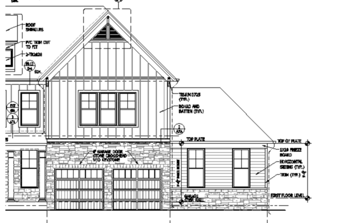
The Exterior

This will be the exterior of our new house, however, we are adding on a “multi-generational suite” on the main level for my parents so the right side will be extended significantly; next to the garage. So, just picture this wider. Here is the extension, next to the garage:

We chose this for the brick and Sterling Gray for the siding:


And midnight blue for the front door and granite (Black) for the roof:

The framework should be up within the next several weeks. I can’t wait to see this house come together! November/December can’t get here soon enough! I’ll tell you this though, as long as the house is built correctly, soundly and safely, I will wait as long as I need to.
House Update
We are building with Toll Brothers, and so far, our team has been wonderful. I have weekly check-ins and updates from my project manager, who I have never met, because of the current state of our world and country. Building a house in the middle of a pandemic has definitely been interesting. I am so grateful for all the construction workers, who work so hard, and for everyone on this team building this new neighborhood. More to come!





[…] covering the exterior selections in a different post, so click here to see […]